中国神秘买家低调出手,曼哈顿今年最贵的豪宅易主了

这里的一个浴缸
抵北上广深一套房
就在一个多月前,位于纽约曼哈顿的公寓刷新了今年来全美最高的房产成交额,同时也是美国有史以来第三贵的买房交易纪录。
这栋超级大楼就是享誉世界顶级富豪圈的——中央公园南220号。
一位来自中国的神秘买家豪掷1.75亿美元(约合10.18亿人民币),购入位于大楼60F及61F的一层一户大平层,外加位于18F的单间(供家政人员使用),共计三套公寓。


整栋公寓占居曼哈顿最“上风上水的”的位置。街对面便是中央公园的南入口;左手边是纽约的丽思卡尔顿酒店和时代华纳中心;右边是广场酒店和第五大道。


还有无数的米其林餐厅、博物馆,林肯表演中心、以及高档百货和贵族学校都近在咫尺,步行即到。
公寓楼作为曼哈顿的最高建筑之一,其修长的线条和醒目的外形几乎重塑了纽约的天际线。


01
纽约亿万富翁的私密城堡
整栋楼高290米,地面69层,地下3层,共有116个全产权公寓单元。
疫情期间,纽约市最贵的房产交易,前20名都来自于该栋物业。就连面积最小、最便宜的222平方米的Studio,售卖起价至少要两千万美元,光是出租,每个月的租金就要价几十万。


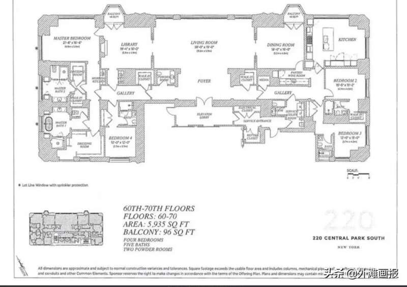
从60楼以上户型的平面图来看,神秘大咖购买的2套60、61层大平层公寓,面积都在550平米左右。每套拥有四间卧室、五个浴室,还有独立的书房以及收藏室。

虽然60层以及61层的内部并未能给媒体开放,但通过参观同栋楼54和55层的同户型公寓,同样能一窥其究竟。




公寓的客厅有使用木材或天然气的壁炉,地面铺就带地暖的核桃木地板。



整个空间重新诠释经典与现代,室内所有的配饰品都是由Bergdorf Goodman提供,拎包入住即可。

厨房配备丰富的顶级厨具,包括知名品牌SieMatic、Miele、Kallista和Lefroy Brooks等。


卫浴室全由大理石铺就,意大利SICIS的瓷砖和地砖,以及法国Carr%uE9的墙面贴砖。整个搭配天衣无缝,浑然一体。
最为关键是这间公寓的VIEW简直无可挑剔,纽约中央公园尽收眼底;整个曼哈顿的摩天楼就好像士兵守卫两旁,居高临下的王者风范跃然而生。
地产界的不变信条是:地段+品质+设计师。大楼外墙采用建筑大师 Robert A.M. Stern 惯用的石灰岩,朱丽叶阳台加以点缀,使得建筑看起来颇具有古早纽约大气、扎实的厚重感。
在纽约的地产界说到Robert A.M. Stern,恐怕无人不晓他的名字。
他是耶鲁大学建筑学院的院长,全球后现代主义风格建筑设计的鼻祖,早在2011年他就获得了最著名的德里豪斯(Driehaus)建筑奖。
Thierry W. Despont主导公寓的室内装潢,他曾负责过自由女神像修复的设计。
他的室内设计简洁明快,大量留白之外引入阳光照射的温馨感。在美国,他的名牌楼盘,都是值得收藏的地产项目。
02
美国40%的豪宅被华人买走
国人在美国买豪宅的新闻屡见不鲜,为了得到更多第一手资料,我特意采访了远在LA的华人地产经济人。
华人天性就爱买房子,富人更是如此。最受青睐的美国城市为纽约、旧金山和洛杉矶。
在这类大城市中,既能体验资本主义纸醉金迷的生活方式,又能保留故国老家的饮食文化。而且不懂英语也不会成为其软肋,中文报纸上密密麻麻的广告涵盖了几乎你能想到的所有服务。
大多华人富豪的理念是“只买最贵的”,所以通常都是大手笔,基本购入都是百万美元以上的。而且,令美国人瞠目结舌的是,很多人都是现金一笔付清。
从曼哈顿公寓俯视的迷之视角
美国各地都有华人的地产经纪人。他们没有工资,全靠佣金过活。
佣金通常为房子售价的百分之三左右,一个月卖掉一栋房子,收入就远远超过工程师。他们大多是中老年经纪人,其中许多人拥有美国正宗的博士学位。尤其自中国的富人们,正是他们的“财神爷”。
朋友说他见过的中国富人多了去了,总结归纳了下他们买房的诸多要求:
1. 重风水忌讳多
比起老外看重的景观房,中国人买房更注重朝向。有次一对年轻的夫妇拿着指南针和罗盘去了一个老美房主的家,把当时在场的其他买家都“震”住了。
2. 买新不买旧
大多国人买房,一定要新,旧的往往心里不太舒服。可是在美国的房产市场,恰恰不是按照新旧来分的,重要的是凭借其地理位置。
3. 钟爱白人社区
很多中国有钱人来这里买房,特别是要自住的,一定强调是全白人的社区,一点儿其他种族都不能有,为此不知道花了多少冤枉钱。
不过朋友也坦言随着中国国力的日趋提升,尤其在疫情后,越来越多的中国人正在抛售美国的高端房产。
2015年5月,一位演艺事业如日中天的国内明星,以550万美元买下位于美国南加州圣玛利诺的豪宅,打算在此地养老。
可就在去年年末,他的房子倒亏80万美元也要抛售;知名某女主持人在加州洛杉矶的名人聚集地,比弗利山庄以750万美元购入一处豪宅,在今年也低于市场价格草草甩手。
03
择邻而居,睦邻而处
中央公园南的后面,便是著名的57街。街上每一幢大楼的门牌号都代表着尊贵和奢华。
而开头提到的220号,正是坐落在这些亿万富豪居住楼群的最中心位置!目前很多居住在附近的大腕们都已经在那里买下了心仪的单位。
220号同时也是纽约房地产史上最神秘的一座住宅大楼,因为该公寓从来没有公开拿到市场上来销售过,也没有在任何网络上出现过关于具体房源的信息。
只有通过房产经纪公司,附上资金流水证明,客户才可直接面见开发商。即便如此,如今90%的单元已经名花有主。
房地产投资信托公司,派拉蒙集团董事长兼首席执行官Albert Behler;巴西亿万富翁Renata de Camargo Nascimento;音乐家Sting和其妻子Trudie都是这里的业主。
对冲基金大亨Ken Griffin以美国历史上最高房产成交价格,2亿3800万美金买下了该栋物业的50-53层。